Inhalt

Grundstücksveräußerungen

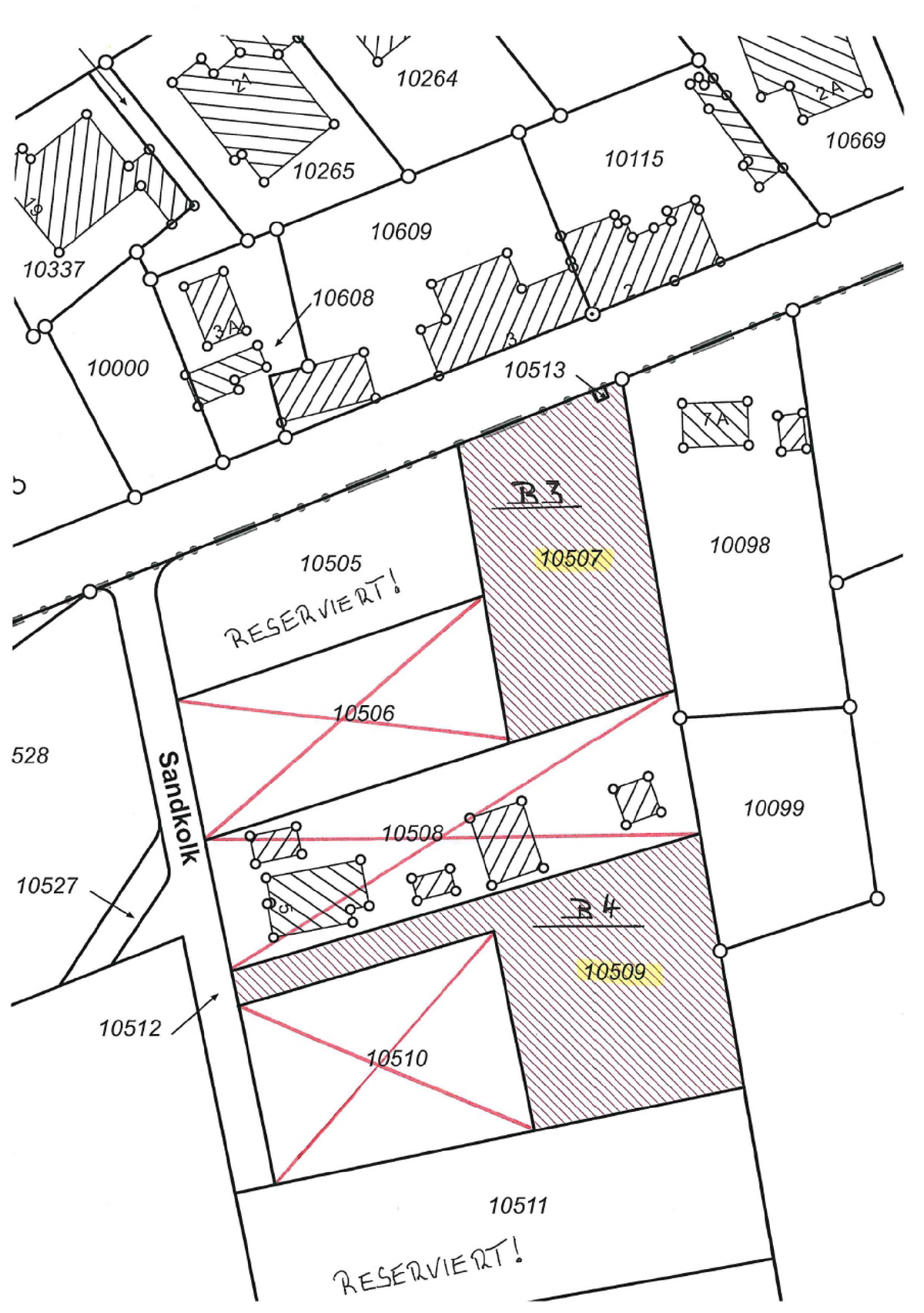
Grundstücksverkauf im B-Plangebiet "Südlich des Parkweges" in Heyrothsberge

Die Gemeinde Biederitz hat im Baugebiet „Südlich des Parkweges“ Bauplätze zu vergeben.
► Die Bauplätze sind straßenseitig mit Strom, Wasser und Telekommunikation erschlossen und können ab sofort bebaut werden.
► Nicht im Kaufpreis enthalten sind Hausanschlusskosten z.B. Trink- und Abwasser, Strom und Telekommunikation, diese sind Angelegenheit des Käufers und von diesem zu tragen.
► Zusätzlich muss auf Kosten des Käufers, auf jedem Anschlussgrundstück, eine separate Pumpstation zur Schmutzwasserentwässerung errichtet werden. Die Unterhaltung und der Betrieb der Pumpstation obliegt dem Käufer.


Angaben zu den Baugrundstücken

  a) Information zu den Bauplätzen
Die nachfolgenden gemeindeeigenen Bauplätze werden zum Bauplatzpreis von 170 EUR/qm vergeben. Gleichzeitig erfolgt der Verkauf eines Bauplatzes „nur“ in Zusammenhang mit dem Erwerb der Wegefläche (Privatstraße „Sandkolk“) Flurstück 10512 als Miteigentumsanteil in Höhe von 8.670 EUR.


   b) Information zur Wegefläche (Privatstraße „Sandkolk“) Flur 4 Flurstück 10512
Bei dem Kaufgegenstand handelt es sich um die Zuwegung für den/die jeweiligen Erwerber zu seinem Grundstück. Hinsichtlich der Wegefläche (Privatstraße) gilt das Verhältnis der Miteigentümervereinbarung (§ 1010 BGB).

Planungsrecht:
Der Bebauungsplan Nr. 50/2019 „Südlich des Parkweges“ in Heyrothsberge ist einsehbar auf den Seiten der Einheitsgemeinde Biederitz (Bauen und Wirtschaft/Bauleitpläne/OT Heyrothsberge ● 50/2019 B-Plan „Südlich des Parkweges“).
Beachtung: Bei der Objektplanung sind die Baugrenzen gemäß dem Bebauungsplan Nr. 50/2019 „Südlich des Parkweges“ einzuhalten.

Das schriftliche Kaufangebot ist bis zum 29. Januar 2026 in einem verschlossenen Umschlag mit dem Hinweis
 

Angebot zum Baugrundstück im B-Plangebiet Nr. 50/2019
„Südlich des Parkweges“ in Heyrothsberge
 

zu senden oder abzugeben an die Gemeinde Biederitz, Magdeburger Straße 38 in 39175 Biederitz.
 
Erforderliche Angaben/Anlagen/Nachweise für die Angebotsabgabe:

  • Wer ist Käufer? (Name, Vorname, Geburtstag, Wohnanschrift, bei Firma der Nachweis aus dem Gewerbezentralregister bzw. den entsprechenden Nachweis bei anderen juristischen Personen/Vereinigungen)

  • Summe des Kaufgebots

  • Nachweis der Finanzierung in Form einer unwiderruflichen Finanzierungszusage eines Kreditinstitutes vorzulegen.

Es wird auf die vorherige Ausführung hingewiesen. Die aufgeführten Voraussetzungen/Bebauung und Bedingungen sind vollumfänglich zu beachten. Sollten die genannten Voraussetzungen (beispielsweise Gesamterwerb Bauplatz mit Miteigentumsanteil -Privatstraße-, Erwerb zum Zweck der Eigennutzung, etc.) nicht erfüllt werden, kann Ihre Bewerbung nicht berücksichtigt werden. Wir bitten Sie, in diesem Fall von der Abgabe einer Bewerbung abzusehen.

Ausschluss eines Rechtsanspruches:
Es besteht kein Rechtsanspruch auf die Zuteilung eines Bauplatzes mit Miteigentumsanteil (Privatstraße).

Sollten sich mehrere Bewerber auf einem Bauplatz mit Miteigentumsanteil (Privatstraße) bewerben, erhält der/die Bewerber den Zuschlag mit der höheren Angebotsabgabe. Nach Abschluss des Angebotsverfahren wird/werden der/die Bewerber über das Ergebnis von der Verwaltung informiert.
 

Ansprechpartner:
Fragen zum Bebauungsplan-Plan richten Sie bitte an Frau Mecke per Mail kmecke@gemeinde-biederitz.de, Fragen zur Erschließung an Herrn Kühne per Mail hkuehne@gemeinde-biederitz.de und Fragen zum Verkauf an Frau Kühn-Helmich per Mail bkuehnhelmich@gemeinde-biederitz.de.

Für die Richtigkeit und Vollständigkeit der Angaben übernehmen wir keine Gewähr. 

Lageskizze zur Ausschreibung: